Boat Club Apartments / Villas in the Sky, Chennai
Architects: SJK Architects
Across India, the apartment is an omnipresent typology. Driven by the demand for housing in urban contexts, the architecture of an apartment building is largely governed by building regulations, site constraints and popular taste; a typology where in most cases, the extent of the architect’s design prerogative is limited to the skin. However, cumulatively, the apartments occupy an enormous proportion of our urban architecture.
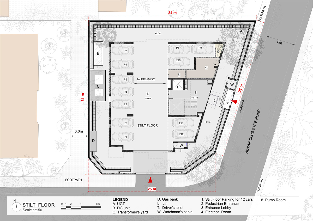
The Boat Club Apartments / Villas in the Sky are designed for a typical urban corner plot. Within the limitations posed by the programme and the context, the design demonstrates the possibility of creating a quality environment while celebrating the constraints. Through a finely resolved plan, the units interlock in the section creating an interesting pattern of duplexes with a central vertical core. The units also connect internally through independent staircases in an intelligent use of the section to edit the single-floor-plate typology of the apartment unit.
While the architectonics are skilfully designed, the exterior skin of the building is an extension and a natural incidence of its plan. The façade is finely articulated with balconies, composite-windows, solids, and voids that enable the user to control the quality of light within, and the interaction with the street. The architects demonstrate restraint and care in the use of materials and in fine detailing, creating a sophisticated palette of whites, greys, and timber.
In a market that is littered with excessive materiality, quick-fix technology and questionable quality of construction, the Boat Club Apartments / Villas in the Sky attempt to set a precedent for the potential for architecture to make a good impact through visual clarity and employment of the design acumen. In a greater context, for a typology that has a large audience, SJK Architects have been able to create a good benchmark and a distinct experience and therefore, the Boat Club Apartments / Villas in the Sky in Chennai is a Citation Project for The Merit List.






























Images & Drawings: courtesy SJK Architects