Ajrakh Studio
Architects: Indigo Architects
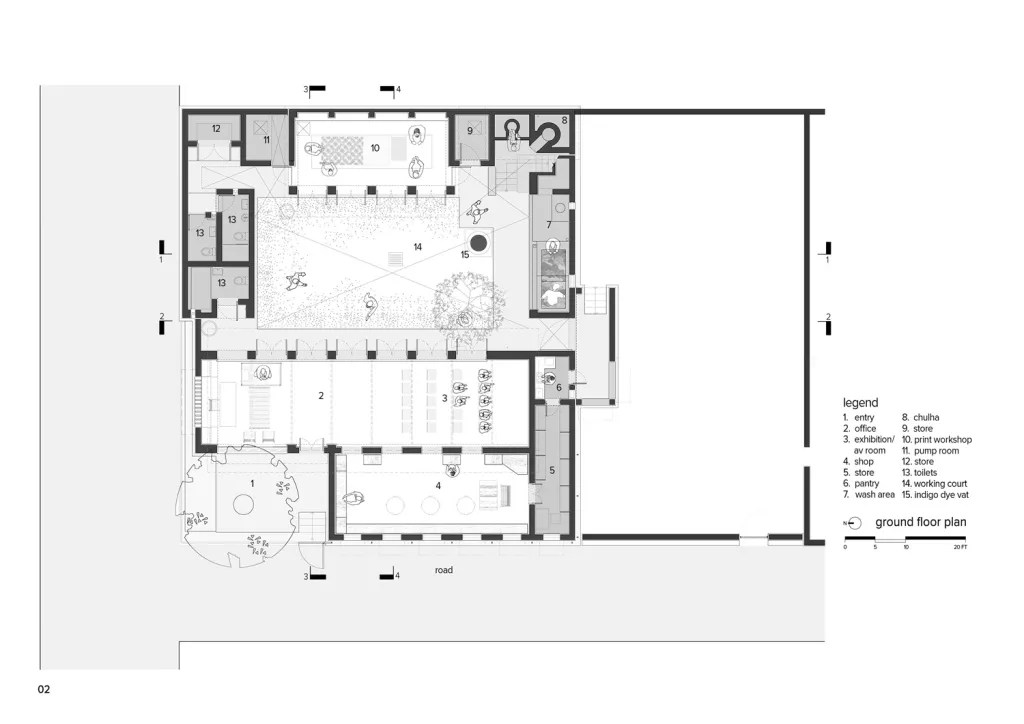
In the aftermath of a massive earthquake in Kutch, Gujarat, a parcel of land was allocated for a cluster of block-printers near Bhuj; a place now christened ‘Ajrakhpur’. The art of ‘Ajrakh’ or fabric block-printing demands a space for a lengthy and precise process that involves printing, gumming, drying, and drying the fabric in multiple cycles. Moreover, the climate of arid Kutch demands architecture to create a habitable environment in a landscape of harsh extremities.
The Ajrakh Studio is a simple building with spaces designed around a courtyard that serves two critical functions – a passive climatic device as well as a place for the processing of fabric. While the courtyard serves as an essential enclosed sanctum, the spaces around are designed as low plinths that support the numerous functional obligations: processing, packaging, store, and retail. In the section, the built space reveals an intelligent use of the roof to remove hot air from the enclosures and to harvest fresh water: a precious resource.
Architecturally, the space is composed of simple and obvious materials employed with a sense of economy and efficiency. However, the design of fenestrations, roofing elements, climate-control details, screens, and flooring adjudicates a sense of precision and detail. For a small institutional building, the careful articulation of volumes and spatial relationships enriches the experience of the people who use and visit the centre.
Small institutions in peri-urban and rural contexts can impact lives and livelihoods of numerous people employed in independent craft practices if designed with a sense of awareness and respect towards their specific contexts. This unique building can be imagined as a prototype for a potentially omnipresent building typology thus augmenting the contribution good contemporary architecture can make in the villages and therefore, the Ajrakh Studio by Indigo Architects is a Citation Project in The Merit List.































Images & Drawings: courtesy Indigo Architects