Natarani Amphitheatre, Ahmedabad
Architects: Indigo Architects
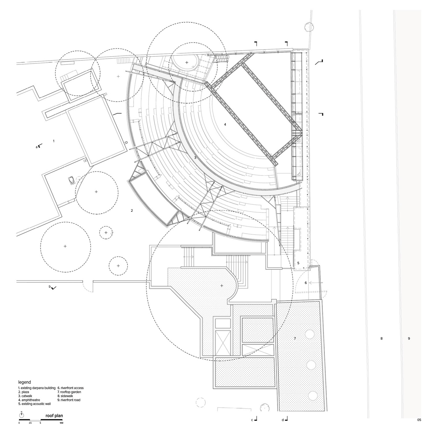
The Natarani Amphitheatre is a beloved performance space for the city of Ahmedabad with a significant history and legacy closely linked to the culture of theatre and performing arts. The physical context of Natarani within the city has changed drastically over the past two decades. In the project for revitalisation of this space, architecture is employed not only restore and augment the functionality of the theatre but also to create a better envelope for concealing the place from the busy riverfront.
The architecture employs a simple palette of materials with an affinity towards the earthen hues of red: bricks, china-mosaic, concrete and polished timber. These materials come together through carefully crafted details that respond to the functional obligations and yet, transcend the mundane thereby engendering experiences of comfort and delight for the users. A system for passive cooling is cleverly built into the steps rendering thermal comfort to the audiences in hot Ahmedabad evenings.
Spatially, the renewed facility lends itself to the requirements of modern performances: lights, projections, sound, and an efficient circulation for the seating. The architectural envelope around the space shields it from the noise of the traffic as bricks are employed to create a barrier – visual and acoustic – around the sanctum. While the materials and detail extend a particular tactility to the space, the layers of new systems help rejuvenate the core programme thus extending a new meaning to a historic place for the performers and the audience.
In the post-liberalisation environment of development frenzy, spaces of cultural memory are often erased with relative ease in favour of new infrastructure that better responds to the demands of contemporary life. As a contrast, this project is a fine example of the ability of architecture to infuse vitality and meaning to a space of collective memory and cultural significance without compromising on the demands of modern performance and therefore, the Natarani Amphitheatre by Indigo Architects is a citation project in The Merit List.


























Images & Drawings: courtesy Indigo Architects