Court House
Architects: MOAD
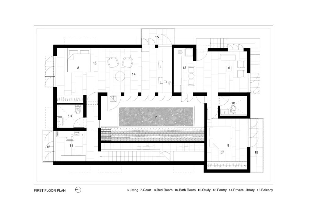
Situated on a typical urban plot in Chennai, this house is designed as an eloquent response to the anticipated density of the city that will grow and takes over the immediate context of this hose. The plan carves out a linear, green, hidden garden: an open-to-sky space that beings in light and air to the sanctum of the house creating, in its wake, a phenomenological experience in clear contrast with the clutter of the urban space outside. Built on a concrete frame using reclaimed bricks as an infill, the design makes clever use of the recycled material in juxtaposition with the simple concrete frame that serves as the structure for the house. Strategically placed openings bring light within while maintaining privacy and quietude from the city beyond. Interesting details enable the frugal palette of materials to transcend their limitations. A carefully crafted section makes space for vertical circulation within the steep inclination of the roof clad with the same material as the walls: the reclaimed bricks. A special quality of light within the house makes it a refuge – a retreat from the city. Small urban houses are a ubiquitous typology endemic to the ever-growing metros in India. This project takes on the challenge of re-articulating the agenda of the small urban house, thereby extending the ambition for architecture that is modest and yet moving, and therefore, the Court House is a Commendation Project in The Merit List.



























