Community Housing at Vastral
Architects: SEALAB
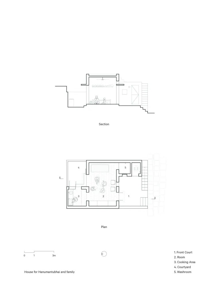
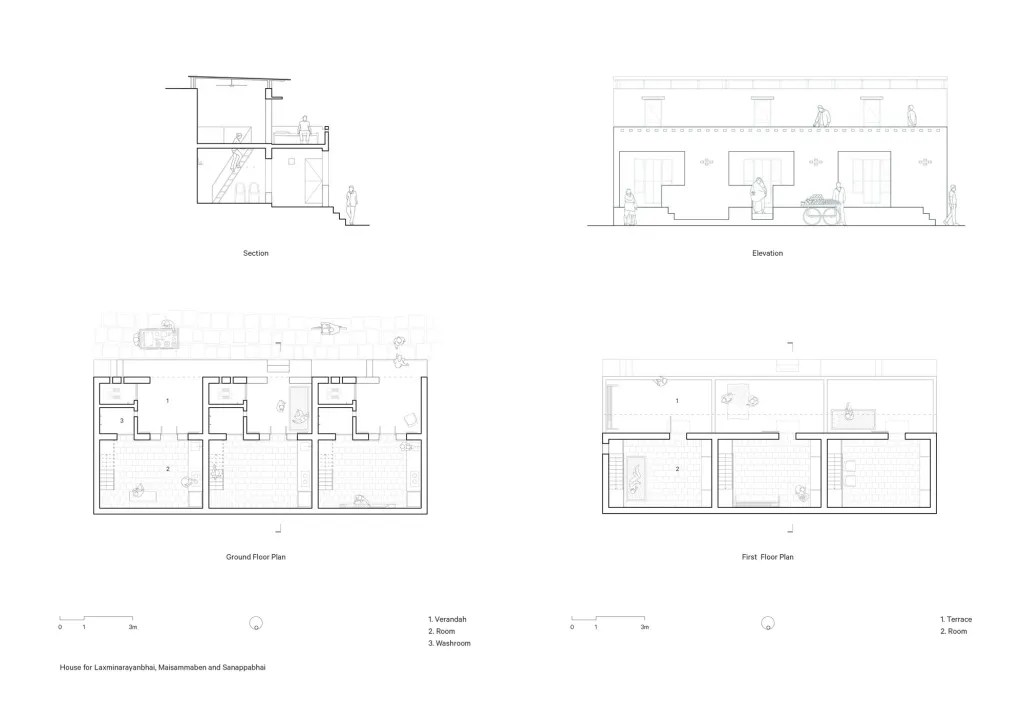
Designed for families of former leprosy patients on a land that is prone to flooding, the project for Community Housing at Vastral employs architectural thinking and intelligent spatial strategies for houses to be constructed at a very low cost. Built in consultation with the stakeholder communities and the facilitator NGO, the architects have made a persistent effort to engage with the people on the ground and create site-specific interventions such that no two units are identical.
Employing a simple palette of materials, the architects venture further to experiment with in-situ making of floor tiles and lightweight ferrocement roofs that help significantly reduce the cost. Within the financial and spatial constraints, the architecture of the units explores numerous prototypical elements with variations and context-specific articulations. Simple details help with replicability of the ideas. High plinths that double-up as street-side ‘otlas’ are designed to make the units resilient to the flooding.
The design exploration envisions multiple units with distinct and unique frameworks, coming together through a cohesive material palette. The scale of the project and the incremental funding available for the same prompted the architects to engage with the community on a longer term to rebuild the fabric one unit at a time. The participation by the people in the process of design and construction enables them to have greater stake in the project thereby enriching their relationship with their dwelling.
In India, low-income housing is often dealt with through deployment of a centralised vision in deference to a top-down system. While this strategy may be essential to tackle large-scale deficits, this project demonstrates the quality: spatial, material, and emotional; of architecture that can be achieved through community participation and a long-term engagement with the context. The architects thus become enablers of good design and therefore, the Community Housing at Vastral by SEALAB is a Citation Project in The Merit List.






































Images & Drawings: courtesy SEALAB