Skip to content
▣
Citations Announced
.
▣
tml@matter.co.in
THE MERIT LIST
About
The Longlist | 2024-25
The Process
Past Cycles
2022-23
2020-21
2018-19
2016-17
2015-16
FAQs
The Lecture
Matter
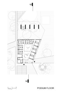
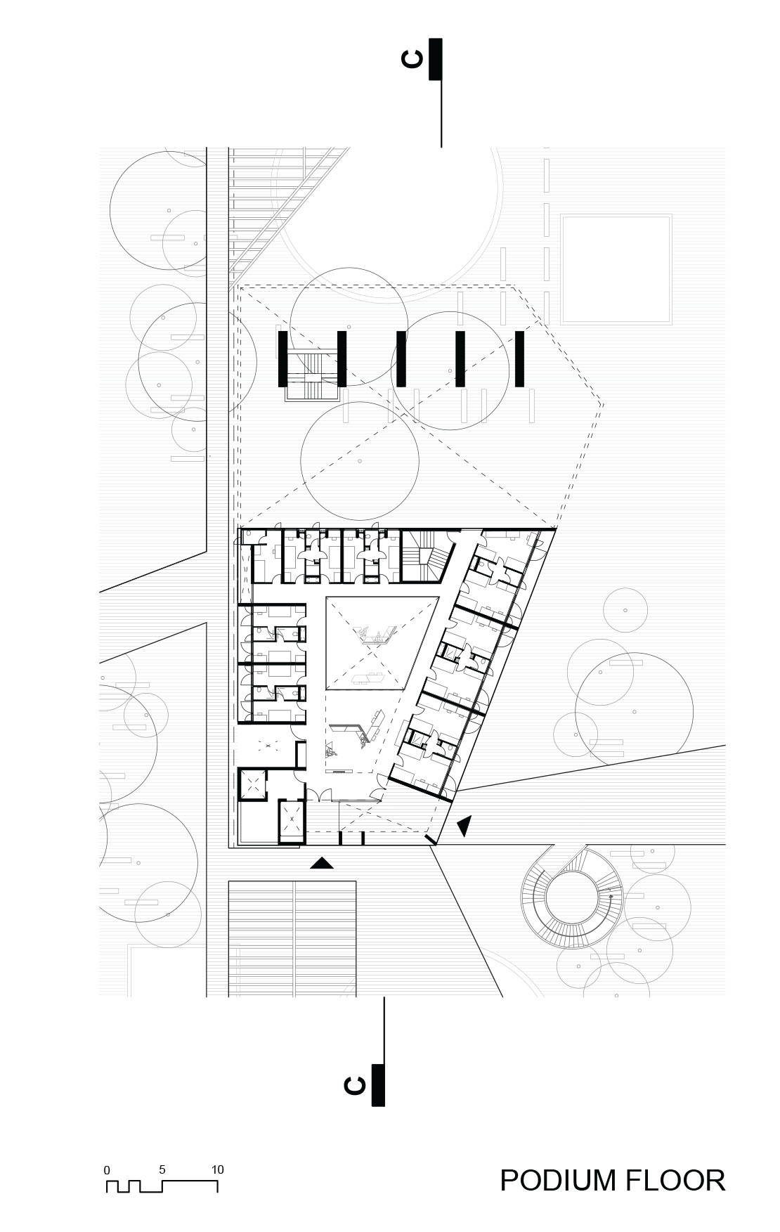
Takshila
08_Boys-Hostel-podium
←
Previous
Subscribe
Subscribed
THE MERIT LIST
Sign me up
Already have a WordPress.com account?
Log in now.
THE MERIT LIST
Subscribe
Subscribed
Sign up
Log in
Copy shortlink
Report this content
View post in Reader
Manage subscriptions
Collapse this bar