KSM Architecture Studio, Chennai
Architect: KSM Architecture
Citation Note:
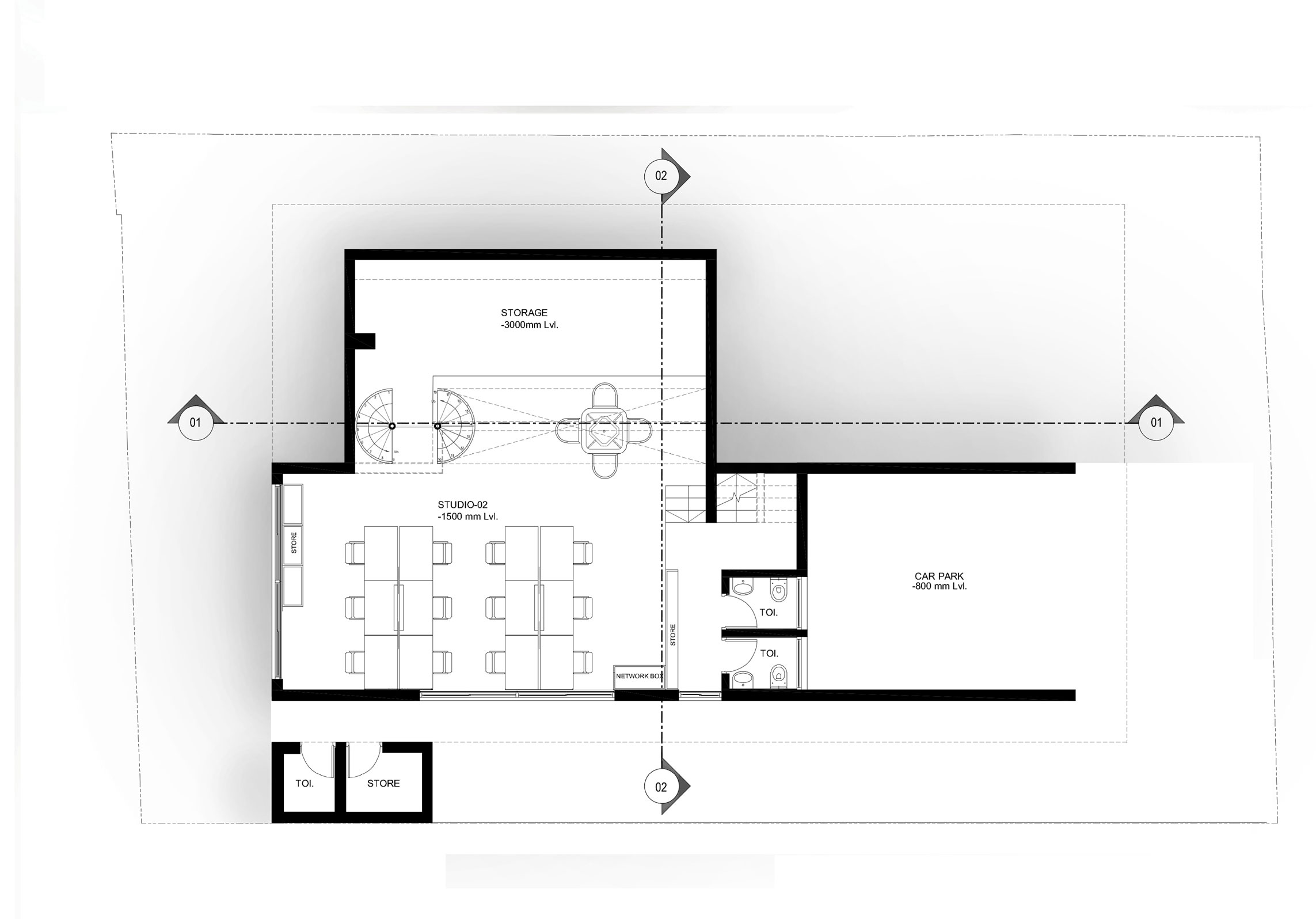
The office building is sited within a dense urban context with low-rise buildings packed in a close-knit street pattern in Chennai. Designed to house an architecture office, the structure is eloquently planned to have split-levels with the staircase acting as the connection between the levels. It is a space for work and interaction.
The staggered floor-plates in the section of the buildings house the studios and the offices. The vertical atrium carved out by the flight of the staircase allows light, air and vision to move uninterrupted through the space. The building, in many ways, reflects the ethos of the office.
By setting the structure back from the street and by carving out a niche for an old shrine, the architecture of the office allows for the street to assimilate its presence. Through an urban-design gesture, the inert concrete façade of the office creates a punctuation in the street.
The possibility of the volume is finely explored with the spaces in the sanctum receiving ample light and air. This participatory space enables individuals who work at KSM to communicate across floors, have chance interactions and work in a comfortable, community space. The terrace, nestled within a canopy, serves as a cafeteria for the office. A staircase ascending from a bamboo filigree enclosure leads there.
The design of urban workspaces in the past two decades has defined the way people live and has a deep impact on the health and well-being of the people who use these spaces for at least eight hours each day. The KSM office space exemplifies the way in which simple architectural gestures can enhance the quality of work environment drastically. The building, designed with a sense of quietude, not only serves the purpose of housing the studios but also represents the philosophy of the firm and therefore, this project is a citation project in The Merit List.
Photographs by Sreenag BRS, Sneha Vivek
































