Project Name: Kriti Kendra – The Art School
Authors: Salient
CITATION
Institutional buildings in contemporary India are often designed as gated enclaves, diminishing their traditional role as places of public access and engagement. Situated on the edge of a township development, this art school, in contrast, is designed as a gateway building connecting the core layout with the context. By its situation, the space demands a certain porosity and permeability, and the architects have taken the opportunity to enhance this unique interface between the institutional and the public.
Architecturally, the space is designed for ample diffused light, orienting the studios towards the gentler landscape as the street-edge receives a quieter facade that helps diminish the scale of the project. The building thus emphasises the environment rather than the object of design. The sensitive moves in the plan, especially on the ground, set a pattern for the institutional edge of the masterplan.
The campus goes further to offer the landscape as a public space, making the structure a portal. By skilfully planning for porosity, the architects also ensure privacy for the institutional functions to manifest. The circulation of the institution, designed as a perpendicular movement to the public axis, helps maintain individuality while accounting for chance encounters.
Most importantly, the design of this institutional building re-stresses the role of institutional campuses in urban and public settings. By engendering a sense of openness, engagement and assimilation, the architecture of Kriti Kendra – The Art School by Salient breaks the typological cycle of walled institutional enclaves and therefore, it is awarded a Citation in The Merit List.

























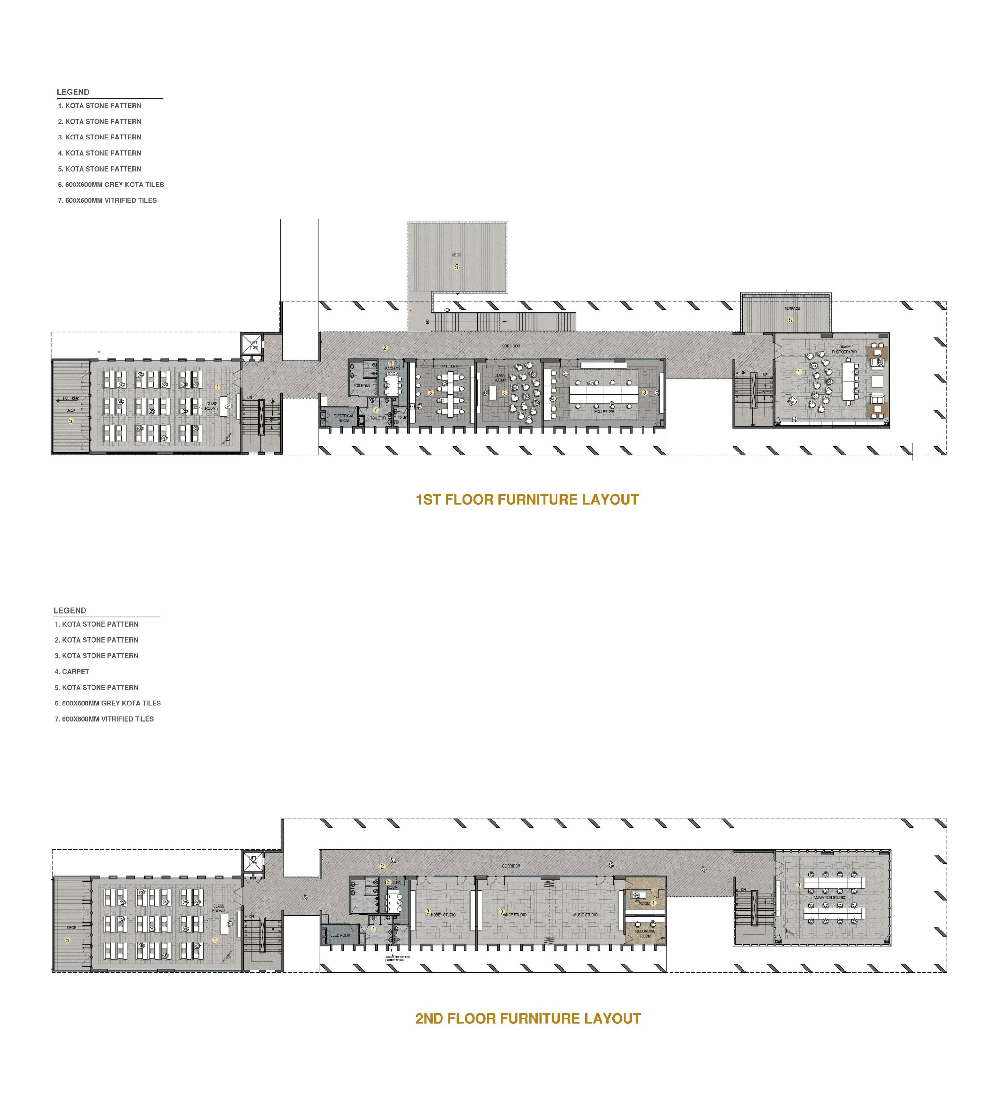
Drawings: courtesy Salient
Images: ©Vivek Singh Rathore; ©Shubajit Das; Salient