Avasara Academy, Lavale
Architect: Case Design
Citation Note:
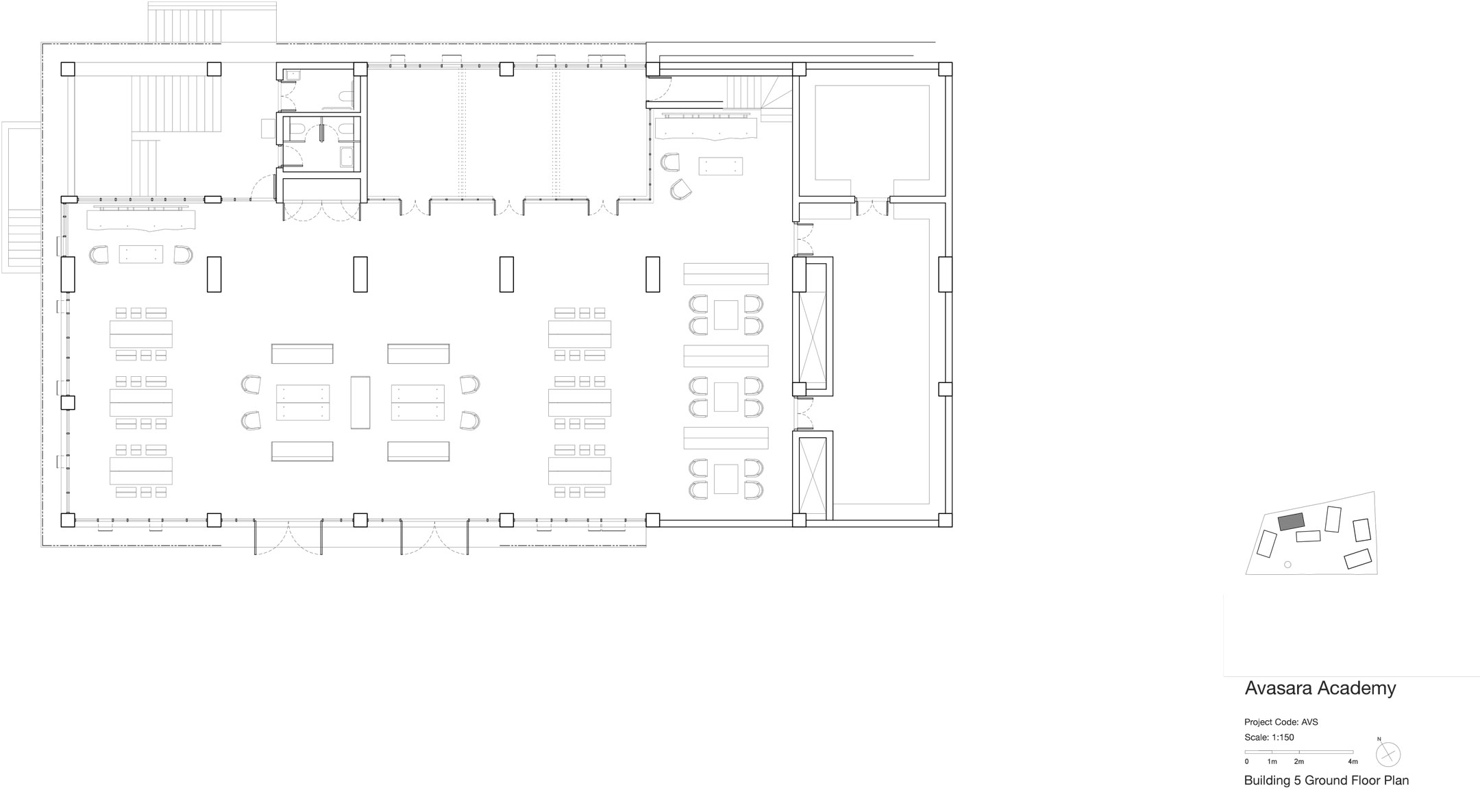
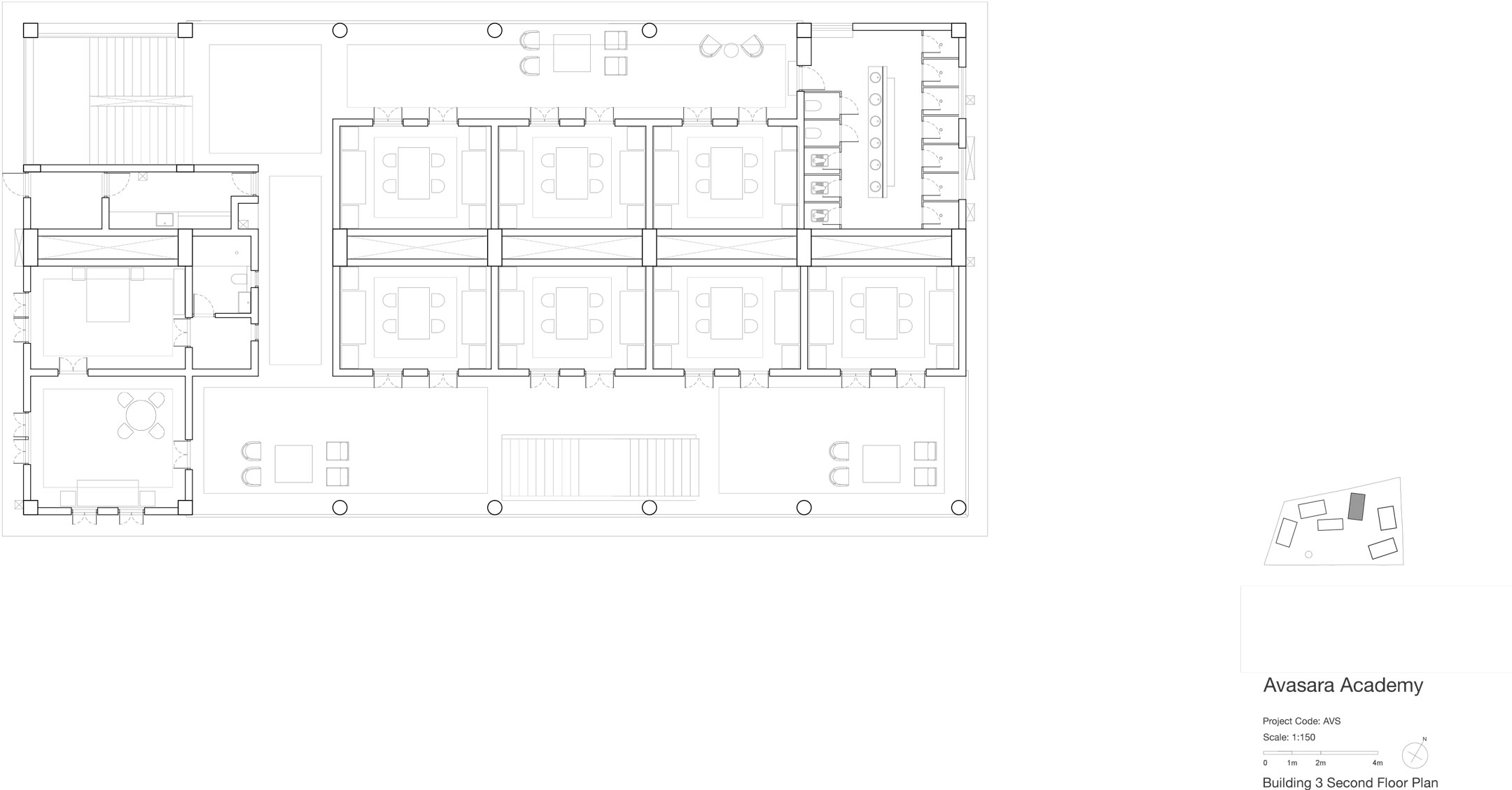
Designed as a system of structure and infill, the Avasara Academy is an example of an architectural approach that is inclusive and shares design ownership with the workers, the clients and the users. Built on a frugal budget, the set of buildings that make the Academy are arranged in a simple plan around a congregation space with staircases negotiating the undulating terrain.
A simple, stately and modular concrete frame articulates the necessary levels, transitions and volumes required for the programme. This repetitive structural system is manipulated to create compelling volumes and spatial moments that characterise the energy of a place for children.
Many components within the buildings are built using recycled and previously-used materials. The structures, wrapped in bamboo screens, help the architects to soften the concrete and masonry buildings while also deploying a second skin that reduces the harshness of light and renders a sense of enclosure.
The affordable repetitive module is thus a complementing strategy of creating a framework and filing in with usable spatial elements. The unlooked-for double-heights, the staircases and the sweeping corridors serve as gathering and playing spaces. The resultant space has a strong architectonic character and yet, it does not dominate the site or the terrain.
Institutional buildings in India are a challenging typology – especially the projects that demand extreme control on the budgets and resources. The Avasara Academy project by Case Design employs design thinking to create an uncompromising architecture that is restrained, affordable, visually exciting and inclusive and therefore, it is a citation project in The Merit List.
Photographs by Ariel Huber, Case Design



























